TOPページ > 物件検索 > 北区の賃貸情報一覧 > 王子神谷の賃貸情報一覧 > ベルシード東十条ツインズB 王子神谷の1LDK賃貸マンション!
ベルシード東十条ツインズB 王子神谷の1LDK賃貸マンション
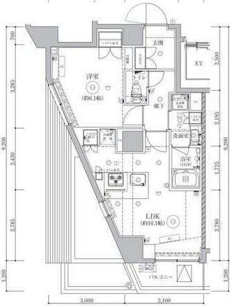
![]() 【間取】
【ベルシード東十条ツインズB スタッフからのイチオシポイント!】安心防犯セキュリティ『オートロック』完備。訪問者の顔が確認出来る安心の『TVモニターホン』付き。忙しい人の味方『宅配BOX』完備。
ベルシード東十条ツインズB 東京都北区神谷3丁目【東京メトロ南北線 王子神谷駅徒歩8分】にある1LDK賃貸マンションです。2021年11月築の8階建てのマンションで、お部屋は8階建ての7階部分です。 物件の広さは41.6m2で人気の1LDKです。 ※お部屋のもっと詳しい内容や入居時期、諸条件のご相談など、ホームページには掲載が間に合わず載せきれていない情報もございます。 気になることが御座いましたらお気軽にメールにてお問い合わせください。 ![]()
※各種情報と差異がある場合は現況優先となります
※物件情報の学区情報について
当サイト物件情報に記載されております通学区域(学区)情報は、国土数値情報ダウンロードサービスが提供する小学校区データ【2016年度】及び中学校区データ【2016年度】を元に加工したものですので、記載情報が現在の学区域と異なる場合がございます。国土数値情報ダウンロードサービスのWEBサイト上で記述通り、データは必ずしも正確とは言えません。また、通学区域(学区)は毎年見直しの対象となりますので、そちらを踏まえ学区情報は参考としてご活用下さい。
この物件に似た物件をチェック!
閲覧した物件の履歴こだわり条件から北区の物件を探す最近検索した条件一覧
| ||||||||||||||||||||||||||||||||||||||||||||||||||||||||||||||||||||||||||||||||||||||||||||
| ▲ページのTOPへ戻る | ||||||||||||||||||||||||||||||||||||||||||||||||||||||||||||||||||||||||||||||||||||||||||||
![]() |
![]() |
![]() |

※当日予約はお電話にてお願い致します。