TOPページ > 物件検索 > 豊島区の賃貸情報一覧 > 巣鴨の賃貸情報一覧 > コンフォリア・リヴ巣鴨 巣鴨の1LDK賃貸マンション!
| ||||||||||||||||||||||||||||||||||||||||||||||||||||||||||||||||||||||||||||||||||||||||||||
|
||||

物件基本情報 |
| 所在地 | 東京都豊島区巣鴨1丁目 |
||||
|---|---|---|---|---|---|
| 交通 | JR山手線 「巣鴨駅」 徒歩4分 都営三田線 「巣鴨駅」 徒歩3分 都営三田線 「千石駅」 徒歩12分 東京メトロ南北線 「駒込駅」 徒歩15分 |
||||
| 種別 / 構造 | マンション / RC造(鉄筋コンクリート造) | 主要採光面 | 北西 | 所在階 / 階数 | 2階 / 10階 |
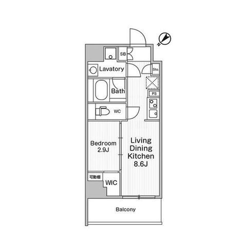
| 築年月 | 2023年11月 | 間取り | 1LDK( LDK8.6畳/洋室2.9畳 ) | 専有面積 | 30.25m2 |
物件詳細情報 |
| 損保 | 要 | 更新料 | あり 1ヶ月 | 鍵交換代 | - |
|---|---|---|---|---|---|
| 駐車場 | 近隣駐車場 | あり30,000円 | 契約期間 借家区分 |
2年 普通 | |
| 現況 | 居住中 | 入居可能日 | 2026年5月中旬 | 取引態様 | 媒介 |
| 保証人代行会社 | 必加入 オリコフォレントインシュア保証料:賃料等の50%(最低2万)、月次保証料:賃料等の1%(更新料無) | 仲介手数料 | バイク置き場 | ||
| 他初期費用 | 鍵交換代33,000円 | ||||
設備詳細情報 |
| キッチン |
|
|---|---|
| バス・トイレ |
|
| 住空間 |
|
| 設備・サービス |
|
| 条件・その他 | ガス:都市 / 2人入居:可 / 保証人代行:必加入 |
| コメント | 安心防犯セキュリティ『オートロック』完備。忙しい人の味方『宅配BOX』完備。共用部分に『防犯カメラ』付きで安心です。 |
| 備 考 | 業界歴3年以上のベテランスタッフが多く在籍しており「経験」を生かした接客が自慢です!他社では取扱いのない「弊社専任物件」も数多数!お客様のご条件をしっかりとヒアリングしベストな物件をご紹介いたします! |
学区情報 |
| 小学校区 | () |
中学校区 | () |
|---|
| 情報更新日:2026年04月19日 | 次回更新予定日:2026年05月03日 |
こちらの物件の空室状況 |
賃貸マンション 14.7万円
駒込駅 徒歩2分
1LDK(32.55u)
嬉しい『月額インターネット利用料無料』付き物件です。安心防犯セキュリティ『オートロック』完備です。顔が確認出来る安心の『TVモニターホン』付きです。
賃貸マンション 15.8万円
千石駅 徒歩6分
1LDK(46.91u)
主要採光「南東向き」で日当たり良好です!安心防犯セキュリティ『オートロック』完備。訪問者の顔が確認出来る安心の『TVモニターホン』付き。
賃貸マンション 14.4万円
千石駅 徒歩4分
1LDK(34.58u)
安心防犯セキュリティ『オートロック』完備です。訪問者の顔が確認出来る安心の『TVモニターホン』付きです。忙しい人の味方『宅配BOX』完備です。
賃貸マンション 14万円
巣鴨駅 徒歩6分
1DK(25.29u)
訪問者の顔が確認出来る安心の『TVモニターホン』付きです。忙しい人の味方『宅配BOX』完備です。共用部分に『防犯カメラ』付きで安心です。
|
![]() |
![]() |
![]() |

※当日予約はお電話にてお願い致します。