PREMIUMCUBE王子神谷 王子神谷の1DK賃貸マンション!|株式会社ハウスマ

TOPページ > 物件検索 > 北区の賃貸情報一覧 > 王子神谷の賃貸情報一覧 > PREMIUMCUBE王子神谷 王子神谷の1DK賃貸マンション!

PREMIUMCUBE王子神谷 王子神谷の1DK賃貸マンション 

  • 9.85万円 / 管理費:無 / 共益費:15,000円
  • 間取り:1DK / 専有面積:25.62m2
  • 敷金:0ヶ月 / 礼金:0ヶ月 / 保証金:0ヶ月 / 敷引:0ヶ月
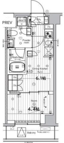
【間取】 間取図
  • 【間取】 間取図
  • 【建物外観】 
  • 【居間・リビング】 リビング/居室
  • 【キッチン】 キッチン
  • 【バス】 バス
  • 【エントランス】 
  • 【その他】 
  • 【玄関】 玄関
  • 【その他部屋・スペース】 エントランス
  • 【洗面所】 洗面
  • 【バルコニー】 バルコニー
  • 【トイレ】 トイレ
  • 【収納】 収納
  • 【その他設備】 設備
  • 【その他】 洗面
  • 【その他設備】 設備
  • 【その他】 収納
  • 【その他】 リビング/居室
  • 【その他】 
  • 【周辺】 ファミリーマート北区豊島八丁目店 徒歩7分。 510m
  • 【周辺】 業務スーパー王子店 徒歩6分。※画像はイメージです 480m
  • 【周辺】 クリエイトエス・ディー北区王子店 徒歩10分。 790m
  • 【周辺】 ニトリ赤羽店 徒歩20分。 1560m
  • 【周辺】 としまみつばち保育園 徒歩8分。 630m
  • 【周辺】 北区立としま若葉小学校 徒歩12分。 960m
  • 【周辺】 私立東京福祉大学王子キャンパス 徒歩23分。 1840m
  • 【周辺】 東京ほくと医療生活協同組合王子生協病院 徒歩10分。 800m
  • 【周辺】 王子警察署 徒歩18分。 1370m
  • 【周辺】 王子郵便局 徒歩13分。※画像はイメージです 1000m

【PREMIUMCUBE王子神谷 スタッフからのイチオシポイント!】

契約金のクレジットカード決済・分割払いも可能です。弊社ではオンライン見学のご対応も可能です!朝、時間のない人には嬉しい『独立洗面台』完備です。
PREMIUMCUBE王子神谷 東京都北区豊島6丁目【東京メトロ南北線 王子神谷駅徒歩12分】にある1DK賃貸マンションです。
新築築の6階建てのマンションで、お部屋は6階建ての3階部分です。
物件の広さは25.62m2で人気の1DKです。
※お部屋のもっと詳しい内容や入居時期、諸条件のご相談など、ホームページには掲載が間に合わず載せきれていない情報もございます。
気になることが御座いましたらお気軽にメールにてお問い合わせください。
03-5981-6442
株式会社ハウスマ 駒込店
お問い合わせNO:RHS-R01220-053749
LINE登録

物件基本情報

所在地 東京都北区豊島6丁目   周辺MAP
交通 東京メトロ南北線 「王子神谷駅」 徒歩12分
JR京浜東北・根岸線 「王子駅」 徒歩24分
東京メトロ南北線 「王子駅」 徒歩24分
JR京浜東北・根岸線 「東十条駅」 徒歩28分
種別 / 構造 マンション / RC造(鉄筋コンクリート造) 主要採光面 西 所在階 / 階数 3階 / 6階
築年月 新築  間取り 1DK( DK6.1畳/洋室4.4畳 ) 専有面積 25.62m2

物件詳細情報

損保 更新料 あり 1.5ヶ月 鍵交換代 -
駐車場 近隣駐車場 あり27,500円  契約期間
借家区分
2年 普通
現況 空家 入居可能日 即入居可 取引態様 媒介
保証人代行会社 貸主指定保証会社加入 初回保証料=月額賃料合計額の50% 1年毎に10,000円 仲介手数料 バイク置き場
他初期費用 契約事務手数料11,000円 室内抗菌処理代17,600円 入居中サポート21,450円

設備詳細情報

キッチン
  • システムキッチン
  • 2口コンロ
バス・トイレ
  • バストイレ別
  • 追焚機能浴室
  • 浴室乾燥機
  • 洗面所独立
  • シャワー付洗面台
  • 温水洗浄便座
  • 室内洗濯機置き場
  • 分譲賃貸
住空間
  • バルコニー
  • フローリング
  • エアコン
設備・サービス
  • クロゼット
  • シューズボックス
  • 全居室収納
  • TVインターホン
  • オートロック
  • エレベーター
  • 宅配ボックス
  • 駐輪場
  • CS
  • BS
  • 防犯カメラ
  • ネット使用料不要
  • ネット専用回線
条件・その他  ガス:都市 / 2人入居:可 / ペット:可能 / 保証人代行:必加入
コメント 契約金のクレジットカード決済・分割払いも可能です。弊社ではオンライン見学のご対応も可能です!朝、時間のない人には嬉しい『独立洗面台』完備です。
備 考 業界歴3年以上のベテランスタッフが多く在籍しており「経験」を生かした接客が自慢です!他社では取扱いのない「弊社専任物件」も数多数!お客様のご条件をしっかりとヒアリングしベストな物件をご紹介いたします!

学区情報

小学校区
()
中学校区
()
情報更新日:2025年11月15日 次回更新予定日:2025年11月29日
※各種情報と差異がある場合は現況優先となります
※物件情報の学区情報について
当サイト物件情報に記載されております通学区域(学区)情報は、国土数値情報ダウンロードサービスが提供する小学校区データ【2016年度】及び中学校区データ【2016年度】を元に加工したものですので、記載情報が現在の学区域と異なる場合がございます。国土数値情報ダウンロードサービスのWEBサイト上で記述通り、データは必ずしも正確とは言えません。また、通学区域(学区)は毎年見直しの対象となりますので、そちらを踏まえ学区情報は参考としてご活用下さい。

こちらの物件の空室状況

部屋番号 賃料 共益費 / 管理費 間取り 専有面積 敷金 礼金 お気に入り 物件詳細
101 19.2万円 20,000円 / - 1LDK 55.84m2 0ヶ月 0ヶ月 お気に入り 物件詳細
102 9.5万円 15,000円 / - 1DK 25.58m2 0ヶ月 0ヶ月 お気に入り 物件詳細
103 9.5万円 15,000円 / - 1DK 25.54m2 0ヶ月 0ヶ月 お気に入り 物件詳細
205 9.8万円 15,000円 / - 1DK 25.62m2 0ヶ月 0ヶ月 お気に入り 物件詳細
207 9.8万円 15,000円 / - 1DK 25.62m2 0ヶ月 0ヶ月 お気に入り 物件詳細
209 9.3万円 15,000円 / - 1K 25.62m2 0ヶ月 0ヶ月 お気に入り 物件詳細
202 9.8万円 15,000円 / - 1DK 25.58m2 0ヶ月 0ヶ月 お気に入り 物件詳細
203 9.8万円 15,000円 / - 1DK 25.54m2 0ヶ月 0ヶ月 お気に入り 物件詳細
201 19.5万円 20,000円 / - 1LDK 55.84m2 0ヶ月 0ヶ月 お気に入り 物件詳細
301 19.6万円 20,000円 / - 1LDK 55.84m2 0ヶ月 0ヶ月 お気に入り 物件詳細
302 9.85万円 15,000円 / - 1DK 25.58m2 0ヶ月 0ヶ月 お気に入り 物件詳細
303 9.85万円 15,000円 / - 1DK 25.54m2 0ヶ月 0ヶ月 お気に入り 物件詳細
305 9.85万円 15,000円 / - 1DK 25.62m2 0ヶ月 0ヶ月 お気に入り 物件詳細
307 9.85万円 15,000円 / - 1DK 25.62m2 0ヶ月 0ヶ月 お気に入り 物件詳細
309 9.35万円 15,000円 / - 1K 25.62m2 0ヶ月 0ヶ月 お気に入り 物件詳細
301 19.6万円 20,000円 / - 1LDK 55.84m2 0ヶ月 0ヶ月 お気に入り 物件詳細
305 9.85万円 15,000円 / - 1DK 25.62m2 0ヶ月 0ヶ月 お気に入り 物件詳細
303 9.85万円 15,000円 / - 1DK 25.54m2 0ヶ月 0ヶ月 お気に入り 物件詳細
402 9.9万円 15,000円 / - 1DK 25.58m2 0ヶ月 0ヶ月 お気に入り 物件詳細
405 9.9万円 15,000円 / - 1DK 25.62m2 0ヶ月 0ヶ月 お気に入り 物件詳細
407 9.9万円 15,000円 / - 1DK 25.62m2 0ヶ月 0ヶ月 お気に入り 物件詳細
409 9.4万円 15,000円 / - 1K 25.62m2 0ヶ月 0ヶ月 お気に入り 物件詳細
501 19.8万円 20,000円 / - 1LDK 55.84m2 0ヶ月 0ヶ月 お気に入り 物件詳細
504 9.95万円 15,000円 / - 1DK 25.62m2 0ヶ月 0ヶ月 お気に入り 物件詳細
506 9.95万円 15,000円 / - 1DK 25.62m2 0ヶ月 0ヶ月 お気に入り 物件詳細
508 9.45万円 15,000円 / - 1K 25.62m2 0ヶ月 0ヶ月 お気に入り 物件詳細
502 19.9万円 20,000円 / - 1LDK 55.8m2 0ヶ月 0ヶ月 お気に入り 物件詳細
601 19.9万円 20,000円 / - 1LDK 55.84m2 0ヶ月 1ヶ月 お気に入り 物件詳細
604 10万円 15,000円 / - 1DK 25.62m2 0ヶ月 0ヶ月 お気に入り 物件詳細
606 10万円 15,000円 / - 1DK 25.62m2 0ヶ月 0ヶ月 お気に入り 物件詳細
608 9.5万円 15,000円 / - 1K 25.62m2 0ヶ月 0ヶ月 お気に入り 物件詳細
602 20万円 20,000円 / - 1LDK 55.8m2 0ヶ月 0ヶ月 お気に入り 物件詳細
03-5981-6442
株式会社ハウスマ 駒込店
お問い合わせNO:RHS-R01220-053749

この物件に似た物件をチェック!

  • 賃貸マンション 10.6万円

    王子駅 徒歩6分

    1K(33.25u)

    安心防犯セキュリティ『オートロック』完備。訪問者の顔が確認出来る安心の『TVモニターホン』付き。ご契約金のクレジットカード決済・分割払い等も可能な物件です。

  • 賃貸マンション 8.9万円

    王子駅 徒歩9分

    1K(24.92u)

    朝、時間のない人には嬉しい『独立洗面台』完備。安心防犯セキュリティ『オートロック』完備。訪問者の顔が確認出来る安心の『TVモニターホン』付き。

  • 賃貸マンション 9万円

    王子駅 徒歩4分

    ワンルーム(28.57u)

    安心防犯セキュリティ『オートロック』完備。訪問者の顔が確認出来る安心の『TVモニターホン』付き。ご契約金のクレジットカード決済・分割払い等も可能な物件です。

  • 賃貸マンション 9.55万円

    王子神谷駅 徒歩2分

    ワンルーム(28.71u)

    安心防犯セキュリティ『オートロック』完備です。顔が確認出来る安心の『TVモニターホン』付きです。共用部分に『防犯カメラ』付きで安心です。


閲覧した物件の履歴

閲覧した物件の一覧を見る

最近検索した条件一覧



気になったら今すぐ!カンタンお問合せ



お問合せ内容必須
【備考欄】
希望条件・来店希望日・その他質問がございましたらご記入ください。
お客様情報
お名前必須
連絡先必須


※ご記入いただいたメールアドレス宛てに、お問合せ内容の確認メールをお送りいたします。
※Yahoo!メールなどのフリーメールをご利用の場合、迷惑メールフォルダに入る場合があります。
 迷惑メールのフォルダ・設定等をご確認下さい。
メールアドレス
電話番号
FAX(任意)



※ご入力いただいたお客さまの個人情報は、「個人情報の取扱いについて」に基づき適正に取り扱います。必ずお読みになり、同意の上お問い合わせください。

 


▲ページのTOPへ戻る



お問合せはこちら

株式会社ハウスマ 駒込店 03-5981-6442

社長コラム社長コラム

もっと見る

お知らせお知らせ

もっと見る

当店は賃貸管理のプロが在籍しています。
来店予約

※当日予約はお電話にてお願い致します。