TOPページ > 物件検索 > 板橋区の賃貸情報一覧 > 板橋区役所前の賃貸情報一覧 > フロンティアレジデンス板橋 板橋区役所前の1K賃貸マンション!
| ||||||||||||||||||||||||||||||||||||||||||||||||||||||||||||||||||||||||||||||||||||||||||||
|
||||

物件基本情報 |
| 所在地 | 東京都板橋区板橋2丁目 |
||||
|---|---|---|---|---|---|
| 交通 | 都営三田線 「板橋区役所前駅」 徒歩3分 東武東上線 「大山駅」 徒歩10分 東武東上線 「下板橋駅」 徒歩14分 都営三田線 「新板橋駅」 徒歩17分 |
||||
| 種別 / 構造 | マンション / RC造(鉄筋コンクリート造) | 主要採光面 | 西 | 所在階 / 階数 | 4階 / 16階 |
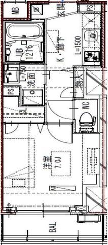
| 築年月 | 2023年12月 | 間取り | 1K( 洋室7畳 ) | 専有面積 | 26.66m2 |
物件詳細情報 |
| 損保 | 要 | 更新料 | あり 1ヶ月 | 鍵交換代 | - |
|---|---|---|---|---|---|
| 駐車場 | 近隣駐車場 | あり25,000円 | 契約期間 借家区分 |
2年 普通 | |
| 現況 | 居住中 | 入居可能日 | 2026年4月中旬 | 取引態様 | 媒介 |
| 保証人代行会社 | 貸主指定保証会社加入 初回保証料=月額賃料合計額の50% 月次保証料=1,000円 | 仲介手数料 | バイク置き場 | ||
| 他初期費用 | 安心入居サポート22,000円 鍵交換代27,500円 | ||||
設備詳細情報 |
| キッチン |
|
|---|---|
| バス・トイレ |
|
| 住空間 |
|
| 設備・サービス |
|
| 条件・その他 | ガス:都市 / 2人入居:可 / ペット:対応 / 保証人代行:必加入 |
| コメント | 嬉しい『月額インターネット利用料無料』付き物件です。安心防犯セキュリティ『オートロック』完備。訪問者の顔が確認出来る安心の『TVモニターホン』付き。 |
| 備 考 | 業界歴3年以上のベテランスタッフが多く在籍しており「経験」を生かした接客が自慢です!他社では取扱いのない「弊社専任物件」も数多数!お客様のご条件をしっかりとヒアリングしベストな物件をご紹介いたします! |
学区情報 |
| 小学校区 | () |
中学校区 | () |
|---|
| 情報更新日:2026年03月12日 | 次回更新予定日:2026年03月26日 |
こちらの物件の空室状況 |
賃貸マンション 13.8万円
新板橋駅 徒歩5分
1LDK(39.08u)
安心防犯セキュリティ『オートロック』完備。訪問者の顔が確認出来る安心の『TVモニターホン』付き。忙しい人の味方宅配ボックス完備です。
賃貸マンション 13.3万円
新板橋駅 徒歩5分
1LDK(35.28u)
安心防犯セキュリティ『オートロック』完備。訪問者の顔が確認出来る安心の『TVモニターホン』付き。忙しい人の味方宅配ボックス完備です。
賃貸マンション 13.4万円
新板橋駅 徒歩1分
1DK(25.30u)
嬉しい『月額インターネット利用料無料』付き物件です。安心防犯セキュリティ『オートロック』完備です。顔が確認出来る安心の『TVモニターホン』付きです。
賃貸マンション 14.5万円
大山駅 徒歩6分
1LDK(35.85u)
安心防犯セキュリティ『オートロック』完備です。顔が確認出来る安心の『TVモニターホン』付きです。嬉しい『月額インターネット利用料無料』付き物件です。
|
![]() |
![]() |
![]() |

※当日予約はお電話にてお願い致します。