TOPページ > 物件検索 > 板橋区の賃貸情報一覧 > ときわ台の賃貸情報一覧 > ルーデンス常盤台III ときわ台の1K賃貸マンション!
ルーデンス常盤台III ときわ台の1K賃貸マンション
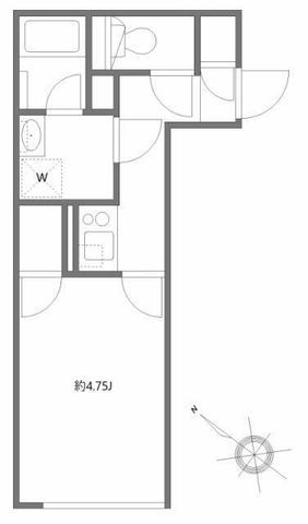
![]() 【間取】
【ルーデンス常盤台III スタッフからのイチオシポイント!】主要採光「南西向き」で日当たり良好です!洗濯ラクラク!天気が悪い日でも安心の『浴室乾燥』付きです。弊社すぐ近くの物件です。お気軽にお問い合わせください。
ルーデンス常盤台III 東京都板橋区南常盤台1丁目【東武東上線 ときわ台駅徒歩4分】にある1K賃貸マンションです。2023年11月築の4階建てのマンションで、お部屋は4階建ての2階部分です。 物件の広さは21.26m2で人気の1Kです。 ※お部屋のもっと詳しい内容や入居時期、諸条件のご相談など、ホームページには掲載が間に合わず載せきれていない情報もございます。 気になることが御座いましたらお気軽にメールにてお問い合わせください。 ![]()
※各種情報と差異がある場合は現況優先となります
※物件情報の学区情報について
当サイト物件情報に記載されております通学区域(学区)情報は、国土数値情報ダウンロードサービスが提供する小学校区データ【2016年度】及び中学校区データ【2016年度】を元に加工したものですので、記載情報が現在の学区域と異なる場合がございます。国土数値情報ダウンロードサービスのWEBサイト上で記述通り、データは必ずしも正確とは言えません。また、通学区域(学区)は毎年見直しの対象となりますので、そちらを踏まえ学区情報は参考としてご活用下さい。
この物件に似た物件をチェック!
閲覧した物件の履歴こだわり条件から板橋区の物件を探す最近検索した条件一覧
| ||||||||||||||||||||||||||||||||||||||||||||||||||||||||||||||||||||||||||||||||||||||||||||
| ▲ページのTOPへ戻る | ||||||||||||||||||||||||||||||||||||||||||||||||||||||||||||||||||||||||||||||||||||||||||||
![]() |
![]() |
![]() |

※当日予約はお電話にてお願い致します。