グローリオシェルト駒込 駒込の2DK賃貸マンション
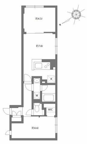
![]() 【間取】
【グローリオシェルト駒込 スタッフからのイチオシポイント!】嬉しい『月額インターネット利用料無料』付き物件です。安心防犯セキュリティ『オートロック』完備です。顔が確認出来る安心の『TVモニターホン』付きです。
グローリオシェルト駒込 東京都北区中里2丁目【JR山手線 駒込駅徒歩4分】にある2DK賃貸マンションです。2024年7月築の5階建てのマンションで、お部屋は5階建ての1階部分です。 物件の広さは38.24m2で人気の2DKです。 ※お部屋のもっと詳しい内容や入居時期、諸条件のご相談など、ホームページには掲載が間に合わず載せきれていない情報もございます。 気になることが御座いましたらお気軽にメールにてお問い合わせください。 ![]()
※各種情報と差異がある場合は現況優先となります
※物件情報の学区情報について
当サイト物件情報に記載されております通学区域(学区)情報は、国土数値情報ダウンロードサービスが提供する小学校区データ【2016年度】及び中学校区データ【2016年度】を元に加工したものですので、記載情報が現在の学区域と異なる場合がございます。国土数値情報ダウンロードサービスのWEBサイト上で記述通り、データは必ずしも正確とは言えません。また、通学区域(学区)は毎年見直しの対象となりますので、そちらを踏まえ学区情報は参考としてご活用下さい。
この物件に似た物件をチェック!
閲覧した物件の履歴こだわり条件から北区の物件を探す最近検索した条件一覧
| ||||||||||||||||||||||||||||||||||||||||||||||||||||||||||||||||||||||||||||||||||||||||||||
| ▲ページのTOPへ戻る | ||||||||||||||||||||||||||||||||||||||||||||||||||||||||||||||||||||||||||||||||||||||||||||
![]() |
![]() |
![]() |

※当日予約はお電話にてお願い致します。