TOPページ > 物件検索 > 豊島区の賃貸情報一覧 > 板橋の賃貸情報一覧 > メインステージ板橋EAST 板橋のワンルーム賃貸マンション!
メインステージ板橋EAST 板橋のワンルーム賃貸マンション
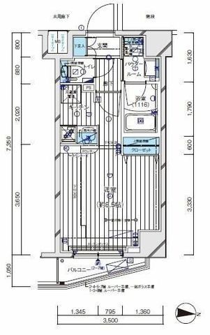
![]() 【間取】
【メインステージ板橋EAST スタッフからのイチオシポイント!】安心防犯セキュリティ『オートロック』完備。訪問者の顔が確認出来る安心の『TVモニターホン』付き。共用部分に『防犯カメラ』付きで安心です。
メインステージ板橋EAST 東京都豊島区上池袋4丁目【JR埼京線 板橋駅徒歩3分】にあるワンルーム賃貸マンションです。2019年7月築の8階建てのマンションで、お部屋は8階建ての6階部分です。 物件の広さは25.72m2で人気のワンルームです。 ※お部屋のもっと詳しい内容や入居時期、諸条件のご相談など、ホームページには掲載が間に合わず載せきれていない情報もございます。 気になることが御座いましたらお気軽にメールにてお問い合わせください。 ![]()
※各種情報と差異がある場合は現況優先となります
※物件情報の学区情報について
当サイト物件情報に記載されております通学区域(学区)情報は、国土数値情報ダウンロードサービスが提供する小学校区データ【2016年度】及び中学校区データ【2016年度】を元に加工したものですので、記載情報が現在の学区域と異なる場合がございます。国土数値情報ダウンロードサービスのWEBサイト上で記述通り、データは必ずしも正確とは言えません。また、通学区域(学区)は毎年見直しの対象となりますので、そちらを踏まえ学区情報は参考としてご活用下さい。
この物件に似た物件をチェック!
閲覧した物件の履歴こだわり条件から豊島区の物件を探す最近検索した条件一覧
| ||||||||||||||||||||||||||||||||||||||||||||||||||||||||||||||||||||||||||||||||||||||||||||
| ▲ページのTOPへ戻る | ||||||||||||||||||||||||||||||||||||||||||||||||||||||||||||||||||||||||||||||||||||||||||||
![]() |
![]() |
![]() |

※当日予約はお電話にてお願い致します。