TOPページ > 物件検索 > 足立区の賃貸情報一覧 > 西新井大師西の賃貸情報一覧 > プレジオ西新井 西新井大師西の1LDK賃貸マンション!
プレジオ西新井 西新井大師西の1LDK賃貸マンション
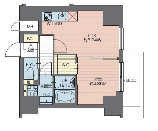
![]() 【間取】
【プレジオ西新井 スタッフからのイチオシポイント!】契約金のクレジットカード決済・分割払いも可能です。弊社ではオンライン見学のご対応も可能です!お料理好きには嬉しい『2口ガスコンロ付システムキッチン』です。
プレジオ西新井 東京都足立区西新井7丁目【日暮里舎人ライナー 西新井大師西駅徒歩1分】にある1LDK賃貸マンションです。2025年築の15階建てのマンションで、お部屋は15階建ての15階部分です。 物件の広さは35.4m2で人気の1LDKです。 ※お部屋のもっと詳しい内容や入居時期、諸条件のご相談など、ホームページには掲載が間に合わず載せきれていない情報もございます。 気になることが御座いましたらお気軽にメールにてお問い合わせください。 ![]()
※各種情報と差異がある場合は現況優先となります
※物件情報の学区情報について
当サイト物件情報に記載されております通学区域(学区)情報は、国土数値情報ダウンロードサービスが提供する小学校区データ【2016年度】及び中学校区データ【2016年度】を元に加工したものですので、記載情報が現在の学区域と異なる場合がございます。国土数値情報ダウンロードサービスのWEBサイト上で記述通り、データは必ずしも正確とは言えません。また、通学区域(学区)は毎年見直しの対象となりますので、そちらを踏まえ学区情報は参考としてご活用下さい。
この物件に似た物件をチェック!
閲覧した物件の履歴こだわり条件から足立区の物件を探す
最近検索した条件一覧
| ||||||||||||||||||||||||||||||||||||||||||||||||||||||||||||||||||||||||||||||||||||||||||||||||||||||||||||||||||||||||||||||||||||||||||||||||||
| ▲ページのTOPへ戻る | ||||||||||||||||||||||||||||||||||||||||||||||||||||||||||||||||||||||||||||||||||||||||||||||||||||||||||||||||||||||||||||||||||||||||||||||||||
![]() |
![]() |
![]() |

※当日予約はお電話にてお願い致します。