TOPページ > 物件検索 > 豊島区の賃貸情報一覧 > 駒込の賃貸情報一覧 > ロイジェント駒込六義園 駒込の1DK賃貸マンション!
ロイジェント駒込六義園 駒込の1DK賃貸マンション
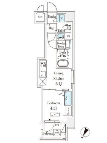
![]() 【間取】
【ロイジェント駒込六義園 スタッフからのイチオシポイント!】顔が確認出来る安心の『TVモニターホン』付きです。忙しい人の味方『宅配BOX』完備です。ゴミ出しラクラク『敷地内ゴミ置き場』あり。
ロイジェント駒込六義園 東京都豊島区駒込1丁目【JR山手線 駒込駅徒歩4分】にある1DK賃貸マンションです。2025年2月築の15階建てのマンションで、お部屋は15階建ての14階部分です。 物件の広さは28.72m2で人気の1DKです。 ※お部屋のもっと詳しい内容や入居時期、諸条件のご相談など、ホームページには掲載が間に合わず載せきれていない情報もございます。 気になることが御座いましたらお気軽にメールにてお問い合わせください。 ![]()
※各種情報と差異がある場合は現況優先となります
※物件情報の学区情報について
当サイト物件情報に記載されております通学区域(学区)情報は、国土数値情報ダウンロードサービスが提供する小学校区データ【2016年度】及び中学校区データ【2016年度】を元に加工したものですので、記載情報が現在の学区域と異なる場合がございます。国土数値情報ダウンロードサービスのWEBサイト上で記述通り、データは必ずしも正確とは言えません。また、通学区域(学区)は毎年見直しの対象となりますので、そちらを踏まえ学区情報は参考としてご活用下さい。
この物件に似た物件をチェック!
閲覧した物件の履歴こだわり条件から豊島区の物件を探す最近検索した条件一覧
| ||||||||||||||||||||||||||||||||||||||||||||||||||||||||||||||||||||||||||||||||||||||||||||||||||||||||||||||||||||||||||||||||||||||||||||||||||
| ▲ページのTOPへ戻る | ||||||||||||||||||||||||||||||||||||||||||||||||||||||||||||||||||||||||||||||||||||||||||||||||||||||||||||||||||||||||||||||||||||||||||||||||||
![]() |
![]() |
![]() |

※当日予約はお電話にてお願い致します。