| ||||||||||||||||||||||||||||||||||||||||||||||||||||||||||||||||||||||||||||||||||||||||||||
|
||||

物件基本情報 |
| 所在地 | 東京都北区王子1丁目 |
||||
|---|---|---|---|---|---|
| 交通 | JR京浜東北・根岸線 「王子駅」 徒歩3分 東京メトロ南北線 「王子駅」 徒歩3分 東京メトロ南北線 「西ヶ原駅」 徒歩15分 都電荒川線 「栄町駅」 徒歩10分 |
||||
| 種別 / 構造 | マンション / SRC造(鉄骨鉄筋コンクリート造) | 主要採光面 | 東南 | 所在階 / 階数 | 2階 / 14階 |
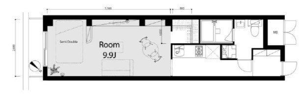
| 築年月 | 1984年3月 | 間取り | ワンルーム( 洋室9.9畳 ) | 専有面積 | 29.68m2 |
物件詳細情報 |
| 損保 | 要 | 更新料 | あり 1ヶ月 | 鍵交換代 | - |
|---|---|---|---|---|---|
| 駐車場 | 近隣駐車場 | あり26,500円 | 契約期間 借家区分 |
2年 普通 | |
| 現況 | 空家 | 入居可能日 | 即入居可 | 取引態様 | 媒介 |
| 保証人代行会社 | 加入要 (個人)賃料等50%/毎月1,000円 | 仲介手数料 | バイク置き場 | ||
| 他初期費用 | 鍵交換代29,700円 初回登録手数料5,500円 家財保険相当額600円 | ||||
設備詳細情報 |
| キッチン |
|
|---|---|
| バス・トイレ |
|
| 住空間 |
|
| 設備・サービス |
|
| 条件・その他 | ガス:都市 / 楽器相談:不可 / ペット:不可 / 保証人代行:必加入 |
| コメント | お掃除もラクラク!料理好きには嬉しい「2口IHコンロ付システムキッチン」です。主要採光「南東向き」で日当たり良好です! |
| 備 考 | 業界歴3年以上のベテランスタッフが多く在籍しており「経験」を生かした接客が自慢です!他社では取扱いのない「弊社専任物件」も数多数!お客様のご条件をしっかりとヒアリングしベストな物件をご紹介いたします! |
学区情報 |
| 小学校区 | () |
中学校区 | () |
|---|
| 情報更新日:2025年12月05日 | 次回更新予定日:2025年12月19日 |
こちらの物件の空室状況 |
賃貸マンション 9.5万円
王子駅 徒歩7分
1K(25.89u)
安心防犯セキュリティ『オートロック』完備。訪問者の顔が確認出来る安心の『TVモニターホン』付き。
賃貸マンション 9.8万円
王子駅 徒歩4分
1K(25.57u)
安心防犯セキュリティ『オートロック』完備。訪問者の顔が確認出来る安心の『TVモニターホン』付き。忙しい人の見方、宅配ボックス完備です。
賃貸マンション 9.3万円
王子駅 徒歩1分
1K(30.04u)
陽当たり良好★安心防犯セキュリティ『オートロック』完備。訪問者の顔が確認出来る安心の『TVモニターホン』付き。朝、時間のない人には嬉しい『独立洗面台』完備です。
賃貸マンション 11万円
王子駅 徒歩7分
2DK(37.14u)
主要採光「南向き」で日当たり良好です!主要採光「南向き」で日当たり良好です!「敷地内駐輪場」ございます!
|
![]() |
![]() |
![]() |

※当日予約はお電話にてお願い致します。